汉斯麦尔HANSMER 汉斯麦尔 HANSMER 汉斯麦尔系列 汉斯麦尔家具 家具 实木 实木家具 原木家具 黑胡桃新品 黑胡桃 黑胡桃家具 定制 定制家具 原木定制 实木定制 整体定制家具 整体定制 整体家居 整体家具 全屋定制 全屋定制家具 个性化定制 客厅家具 餐厅家具 卧室家具 书房家具 沙发 厅柜 茶几 餐桌 餐台 餐椅 餐边柜 双人床 床边柜 床头柜 衣帽架 衣柜 衣帽间 书桌 书柜 儿童房 榻榻米 金汐奖 深圳国际家具展 木质家具 原生整木 唯美家具 传统家具 儿童家具 办公家具 健康家具 环保家具 便宜家具 实用家具 现代家具 古典家具 欧美家具 欧式家具 美式家具 中国家具 上海家具 耐用家具 健康环保家具 特色家具 古典家具 闵行区家具 闵行家具 徐汇家具 徐汇区家具 普陀区家具 普陀家具 家具卖场 红星美凯龙 金盛家居 金海马家具 欧亚美家具 智能家居 多功能家具 智能家具 本地家具 长宁区家具 长宁家具 松江家具 宜家家具 宜家家居 简洁家具 儿童房家具 北欧家具 北欧风家具 奉贤区家具 奉贤家具 浦东新区家具 浦东家具 普陀区家具 普陀家具 嘉定区家具 嘉定家具 金山区家具 金山家具 宝山区家具 宝山家具 黄浦区家具 黄埔家居 杨浦区家具 杨浦家具 静安区家具 静安家具 青浦区家具 青浦家具 崇明区家具 崇明家具 虹口区家具 虹口家具 小资家具 性价比家具 红木家具 工艺品 家具工艺 家具展示 进口家具 家具进口 电动家具 另类家具
183平三房装修构筑幸福起点
2018年3月6日阅读数:3568

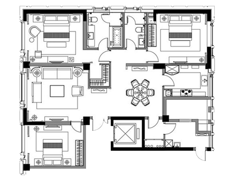
户型面积:183平米

户型特点:322

设计风格现代简约

居住人员五口之家

小区地址虹口区商丘路399

主要饰材

实木家具地砖木地板防火涂料腻子粉油漆乳胶漆网络线电话线电线穿线管、PP-R排水管防水剂水泥液晶电视水晶吊灯等

设计主题

空间组织不再是以房间组合为主空间的划分也不再局限于硬质墙体而是更注重会客餐饮学习睡眠等功能空间的逻辑关系通过家具吊顶地面材料陈列品甚至光线的变化来表达不同功能空间的划分而且这种划分又随着不同的时间段表现出灵活性兼容性和流动性

户型图

 

 对称是形式美的传统技法电视机背景墙和沙发的背景墙均是这种设计给人感受秩序庄重整齐即和谐之美

餐厅采用了圆形吊顶设计与圆面餐桌相呼应不仅美观而且起到了非常重要的凝聚的效果可以显著的提升餐厅的氛围

落地窗卧室住起来舒适而且浪漫悠然惬意自不必说

卧室是大家的私密之地是大家休息睡觉的地方所以需要大家精心设计打造一个优雅的卧室出来这样才可以对得起自己

微信扫描二维码添加官方公众号

版权所有:上海卓卡家具有限公司 全国大陆地区免费电话:400-821-9968 地址:上海市奉贤区奉城镇南奉公路1062号4幢 备案号:沪ICP备18007151号-3